Bruttó vételár
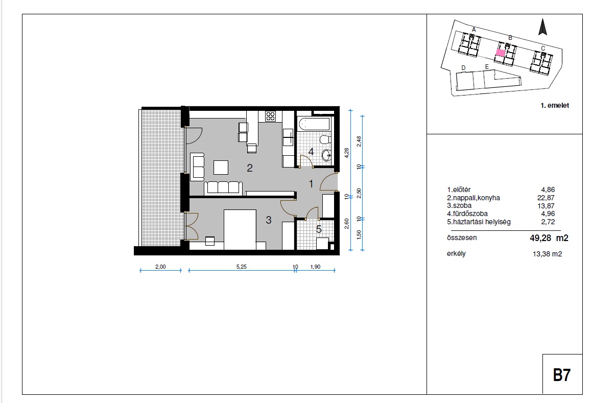
B épület, I. emelet, 7. számú lakás
Lakás száma
B7
Emelet
1
Szobák száma
N + 1
Lakás mérete
49.28 m2
Erkély mérete
13.38 m2
Tájolás
Ny
A jelen adatok tájékoztató jellegűek, ezért a Beruházó azok változásával, vagy bármely attól való eltéréssel kapcsolatban semmilyen kötelezettséget, vagy felelősséget nem vállal. Az ábrázolt berendezési tárgyak és bútorok, a burkolatok megjelenése nem képezi a szerződés tárgyát. A pontos felszereltség műszaki leírás szerint. A területek burkolatlan felületekre értendőek. A nettó területek helyiségeknek a falak közötti területei. A bruttó területek tartalmazzák a válaszfalak alatti területet. Jelen rajzon szereplő méretek a kiviteli tervek szerint módosulhatnak.

